Skip to main content
Enzians17 001

ENZIAN-S17

The ENZIAN S17 is an elegant timber garden house with a spacious annex, full-length front windows, and optional fenced terrace. Its classic gable roof and robust construction ensure durability, while the open façade offers panoramic views and natural light. Ideal for use as a garden retreat, lakeside cabin, café, or boutique shop, the S17 is a flexible solution for both private and commercial outdoor environments.

Interested?

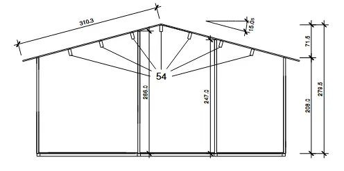
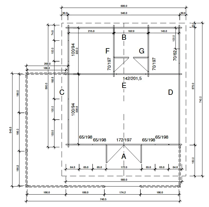
    In this section you can see the floorplan and profile views of our products.